糊盒形式:手提袋盒
給紙部
自動連續正确給紙,采用單張電眼送紙;
給紙間隔采用變頻馬達加減速調整,觸摸屏操作,簡單方便。

确保紙張平穩不緻損壞。

完成袋口折邊及上膠,采用熱熔膠噴膠上膠方式。

膠水壓合,确保上膠牢固不易脫膠。

紙張90度方向切換。

采用熱熔膠噴膠方式,袋口封合采用下糊筒裝置上袋口封膠。

軌道式開盒,飛碟式折線成型。

采用勾子開底,打開紙袋底部。

袋底加放卡片,采用伺服控制器設定放卡;底部貼合成型,采用熱熔膠噴膠方式。

紙袋轉角90度,折邊封底,采用冷膠噴膠方式。

采用光電計數器預設定量計數,控制踢闆依設定數量自動對紙盒作出标識。

采用光電計數器預設定量計數,控制踢闆依設定數量自動對紙盒作出标識。

采用原裝美國諾信冷熱膠噴膠系統,噴膠均由電眼檢測信号控制且誤差非常小,噴膠的長度與大小、位置均在電腦上可以任意調節。


采用日本原裝軸承,硬鉻棒制造,使機器穩定性有長久之保證;
皮帶采用原裝日本瑞塔産品,使機器有更出色的表現;
采用牙杆調整機構,适用于不同規格制袋,操作迅捷簡便、易于掌握;
動力傳輸采用強力時規皮帶,穩定耐用、高效率、低噪音、易保養;
具有上下調節功能的油壓輸送結構設計;
自動折上邊功能;可糊風琴紙袋桶,且可以多尺寸調節;
自動封底功能,可将紙袋底部上膠封死;
自動旋轉功能,可将紙袋90度旋轉,将紙袋底部折合上膠封死;
自動插底襯卡功能,特制的插卡機将底卡插入袋底,省掉人工作業,提高工作效率;
采用變頻調速電機,PLC控制系統,原裝日本進口元器件。
主要技術參數 | |
糊盒規格 | MAX. 1100 mm |
适用紙質 | 200g以上卡紙 |
給紙方式 | 自動正确連續給紙 |
糊盒形式 | 手提袋盒 |
上膠方式 | 采用美國諾信冷、熱熔膠系統噴施白膠或即貼性熱熔膠 |
糊盒速度 | 4000~5000個/小時(視紙張及操作因素而定) |
所需電力 | 20KW. AC380V |
所需氣壓 | 6-8kg/cm² ----- 用戶自備 |
機械尺寸 | L18.0×W6.5×H1.8m |
機械重量 | 9800Kg |
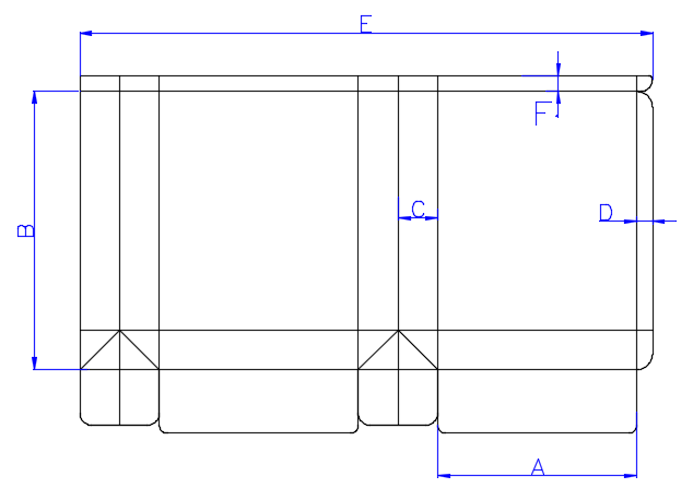
基本制袋尺寸 |
A | MAX | 380 |
MIN | 200 | |
B | MAX | 800 |
MIN | 260 | |
C | MAX | 100 |
MIN | 35 | |
D | MIN | 20 |
E | MAX | 1100 |
MIN | 620 | |
F | MIN | 18 |
B>3*C+50 | ||